10萬元打造三室美居,巧用吧臺,讓家再變大10㎡~
“想要一個可以生活的家,有花有草;喜歡簡簡單單,平平淡淡,家中無需過多的裝飾,舒服自然就好?!?/em>
阿無,本期案例的屋主,一名90后的平面設計師,和自己深愛的丈夫,準備開始2人世界的幸福生活;裝修,自然交給了積木家,有花有草,簡簡單單,平平淡淡,是她的裝修需求,同樣也代表著這個年輕女孩子的生活態度。
項目說明
| 房屋面積: | 120m2 | ; | 戶型配置: | 3室2庁2衛 | ; | 案例坐標: | 西安 |
| 設計風格: | 北歐 | ; | 硬裝預算: | 10萬 | ; |
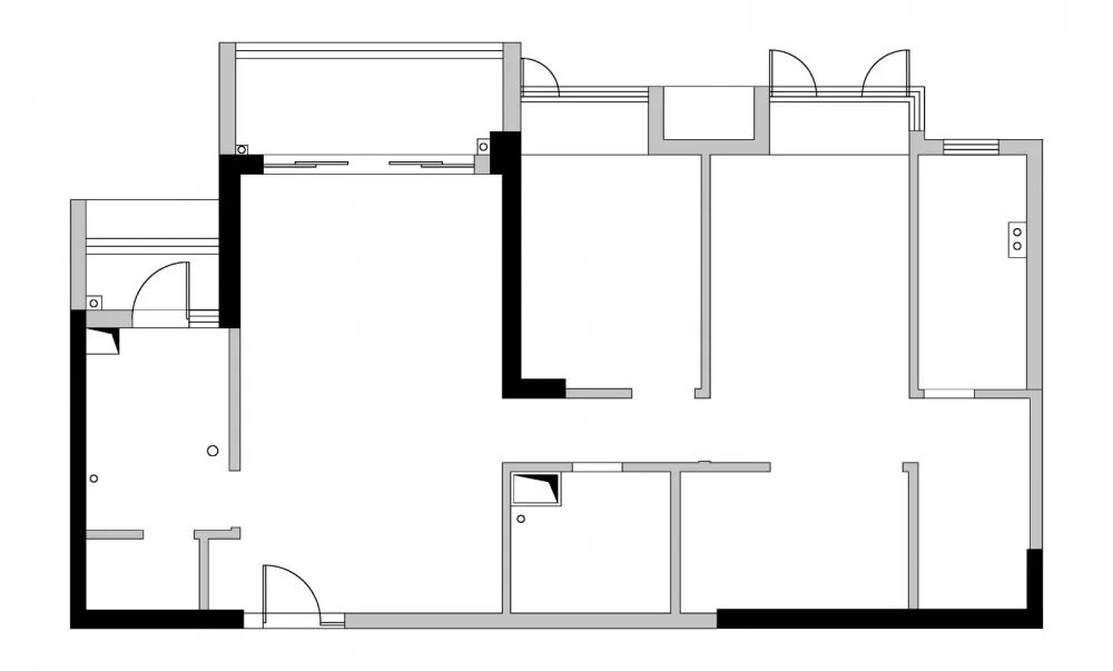
*屋主原戶型結構*
原始戶型的結構很規整,2個臥室朝南,但是書房沒有采光,每個空間之間沒有連接,顯得趣味性少了些;于是,設計師根據屋主阿無的生活習慣做了一些調整。
*設計師改造戶型*
1.打開廚房的墻面,利用背景墻的一半作為吧臺和廚房的互動關系,弱化背景墻的功能;
2.將原來廚房、儲藏間、鞋柜的位置做重新的調整,增加了一個嵌入式的冰箱,增大廚房的使用功能;
3.拆除原先客廳、陽臺間的門,增大客廳的視野;
4.將主臥與書房打通,解決采光的問題,同時,也滿足了屋主的使用需求;
5.餐廳區域,利用客衛的墻體,做了一個嵌入式的餐邊柜。
空間效果
客廳
客廳的設計中,采用了屋主阿無最喜歡的木質的材質及紋理,木質的地板、木質的餐桌椅、木質的茶幾等,顯得空間更有質感。
屋主阿無平時喜歡拿著電腦研究自己的設計,平時看電視的時間很少,所以我們的設計師就索性拿掉了電視背景墻的設計,改造成了吧臺,使得廚房和客廳的連接更有趣;
休息日盯電腦累了的時候,可以到吧臺喝杯咖啡,這樣的生活多愜意;周末親朋好友來訪的時候,也方便聊天。
做飯洗菜的時候,也可以與客廳內的家人很好的互動,又是另外一種感覺,家里老人來小住的日子,將投影放下來就可以有極佳的觀影體驗,媲美IMAX影院。
沙發背景墻上的幾幅畫,是屋主阿無自己的臨摹作品,搭配灰色的沙發,自由,隨性。
餐廳
客餐廳的墻面使用白色的乳膠漆,簡單,干凈;
餐邊柜是從衛生間那里“偷”來的空間,將餐邊柜完美的嵌入墻內,增大餐廳的使用空間;
廚房
廚房的搭配以自然色為主,白色的墻磚,黑色的地磚,將原先玄關、廚房的墻體進行改造,將冰箱嵌入墻內,冰箱旁邊是一個小型的儲物間,十分的實用。
主臥
主臥的模樣可以說是屋主阿無的成果,同樣白色的乳膠漆墻面,搭配榆木的床,素色的床品,干凈且有質感,裝飾畫是阿無從淘寶淘來的,讓臥室顯得更加有意境。
從頂上垂落的床頭燈,同樣是屋主所喜歡的木色,兩側床頭均配有雙控的開關,晚上睡覺時,主臥房門處開燈,床頭關燈,十分的方便。
設計師打通了主臥與書房之間的墻,借用主臥窗外的日光,巧妙的解決了書房的采光問題,主臥與書房之間特意用了一個窄邊框的玻璃門來做隔斷,空間互通,使用起來更加的方便。
書房
書房是屋主阿無為自己老公特意設計的,整面墻的通頂書柜設計,是使用頻率最高的地方,書柜設計的時候特意預留了存放文件的抽屜以及打印機的專屬位置,針對不同書籍的大小,書柜的間距大小也不相同,整體以原木色的色調為主。
兒童房
考慮到不久將來的孩子,兒童房的設計比較中性,色調上也采用了較為傳統的設計。
衛生間
衛生間的設計同樣采用了和廚房一樣的黑白顏色的搭配,干濕分離,互不打擾。
陽臺
陽臺是屋主阿無最喜歡的一個地方,平時在這里養養花,種種草,陽臺墻面洞洞板是專門用來養多肉的,可移動的層板,根據植物的生長狀態隨時調整。
本文標簽:新房裝修

